物件名:売土地
用途:住宅用地
最寄り駅:近鉄長野線 喜志駅
交通機関
近鉄長野線喜志町 徒歩3分
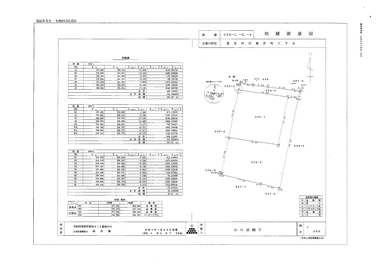
所在地:富田林市喜志町三丁目539-3
価格:2,680万円 坪単価35.9万円
土地面積:公簿247.05㎡ 約74.73坪
土地権利:所有権
地目:宅地
都市計画:市街化区域
用途地域:第一種住居
建ぺい率:60%
容積率:200%
地勢:平坦
環境:住宅街
現況:更地
引渡日:即時
引渡日:更地渡し
接道状況:北側 公道 幅員約4.7m 約3m接面
富田林市喜志町3丁目 売土地
最寄り 「近鉄長野線 喜志駅」より徒歩3分の立地となっております。
近隣には幼稚園・小学校、公園やスーパーが徒歩圏内にあり、通学や通勤など住みやすい生活環境も魅力の一つです。
土地は北側公道に面しており幅員約4.3mとなっております。
一方向道路の土地で土地面積は約74.73坪、間口が約3m、建築条件はございませんので、お好きなハウスメーカーにて建築可能となっております。
主要な駅から徒歩わずか数分の距離に位置し、アクセスの良さが特長です。
通勤や通学に便利で、生活環境としても非常に魅力的です。周囲には商業施設や公共サービスも充実しており、住みやすい生活環境が整っています。
ぜひ一度、ご覧になってください。
また当社にてローンシュミレーションや新築プラン等のご提案も可能です。
お気軽にお問い合わせください。

*****************************************
有限会社大和住販 -羽曳野市羽曳が丘で昭和57年創業-
〒583-0864
羽曳野市羽曳が丘3丁目20-1
TEL:072-958-6991 FAX:072-958-6994
MAIL:daiwajre.estate@gmail.com
ホームページ:https://habikino-daiwa.com/
Facebook:https://www.facebook.com/habikino.daiwa.estate
*****************************************











